
Casa Flor was commissioned by a friend of the studio, Nacho Mazzini, proud owner of the “yellow house with a round window” built in 2021. Fascinated by the use of that home and attentive to the evolution of his family dynamics, he wished to add a new module on the adjoining plot next to his first iHouse, located in Punta Ballena near the Arboretum. The intention was to create an intimate and reflective pavilion—a space for contemplation—while avoiding the challenges of building a traditional house directly beside his current home.
With this premise, the project set out to design a dwelling that could serve as a retreat, one that maintained a strong connection with its surroundings. The aim was to dissolve the boundaries between inside and outside, creating a permeability that amplifies the experience of inhabiting the landscape, while at the same time integrating all the essential services needed to live comfortably.
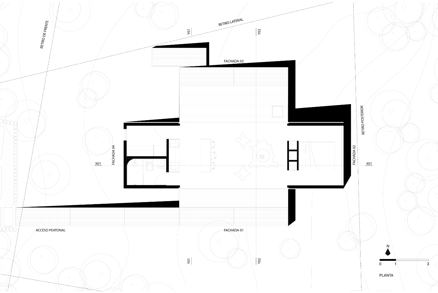
The design is based on a single rectangular volume of pure geometry, within which two interior bodies define three clearly differentiated zones along its longitudinal axis. Facing the street, the service areas for storage and hygiene are arranged behind an almost completely opaque façade, ensuring privacy and shelter for the entrance. At the center, the social area opens up on both sides, integrating the living room with the outdoors. This effect is achieved through a system of sliding panels that run along the exterior of the walls, allowing the opening to be fully liberated. Toward the back of the site lies the resting area, conceived as a contemplative space: a double bed placed between two solid side walls, facing a large fixed glass pane that extends from floor to ceiling and wall to wall, creating the sensation of sleeping among the trees.
The entire construction process was carried out in the factory, under iHouse’s strict quality standards, ensuring precision in every detail, minimizing noise and waste, and optimizing the efficiency of the system. The on-site installation unfolded seamlessly while the client continued living next door, with the natural terrain left completely untouched. In this way, the house does not intrude upon the landscape but rather settles lightly upon it, allowing the full experience of the place to be lived.
Casa Luna
Place: Punta Ballena, Uruguay
Studio: iHouse estudio
Author: Andres Garcia, Marcelo Mederos, Agustín Sica, Mateo Arjona
Completion: 2025
Floor area: 40 m2
Photo: Aldo Lanzi, Agustin Sica