
Studio Luni architekti navrhlo rodinný dům zasazený do krajiny Vysočiny, který se od původního zadání ─ vytvořit stavbu se stodolovitým charakterem ─ značně odlišuje. Nový bezbariérový dům lichoběžníkového tvaru se samostatným apartmánem pro hosty je orientován na východní i západní světovou stranu.
Z původního návrhu hmoty domu ve tvaru písmene Y se stala jeho čistší a minimalističtější verze ve tvaru písmene I. Kvůli svažitému pozemku je vstup z příjezdové komunikace snížen o půl metru, na opačné straně domu vznikla opěrná zídka. Díky tomu je celý objekt zasazen do terénu a zároveň zůstává bezbariérový.
Exteriér je členěn do funkčních zón – východní terasa slouží k rannímu posezení, západní krytá terasa je propojena s venkovní kuchyní, pod zapuštěným bazénem je uloženo tepelné čerpadlo a pozvolně klesající zahrada se zídkou poskytla prostor pro popínavé rostliny a záhony. Fasáda domu kombinuje sibiřský modřín a černě ošetřený smrk.
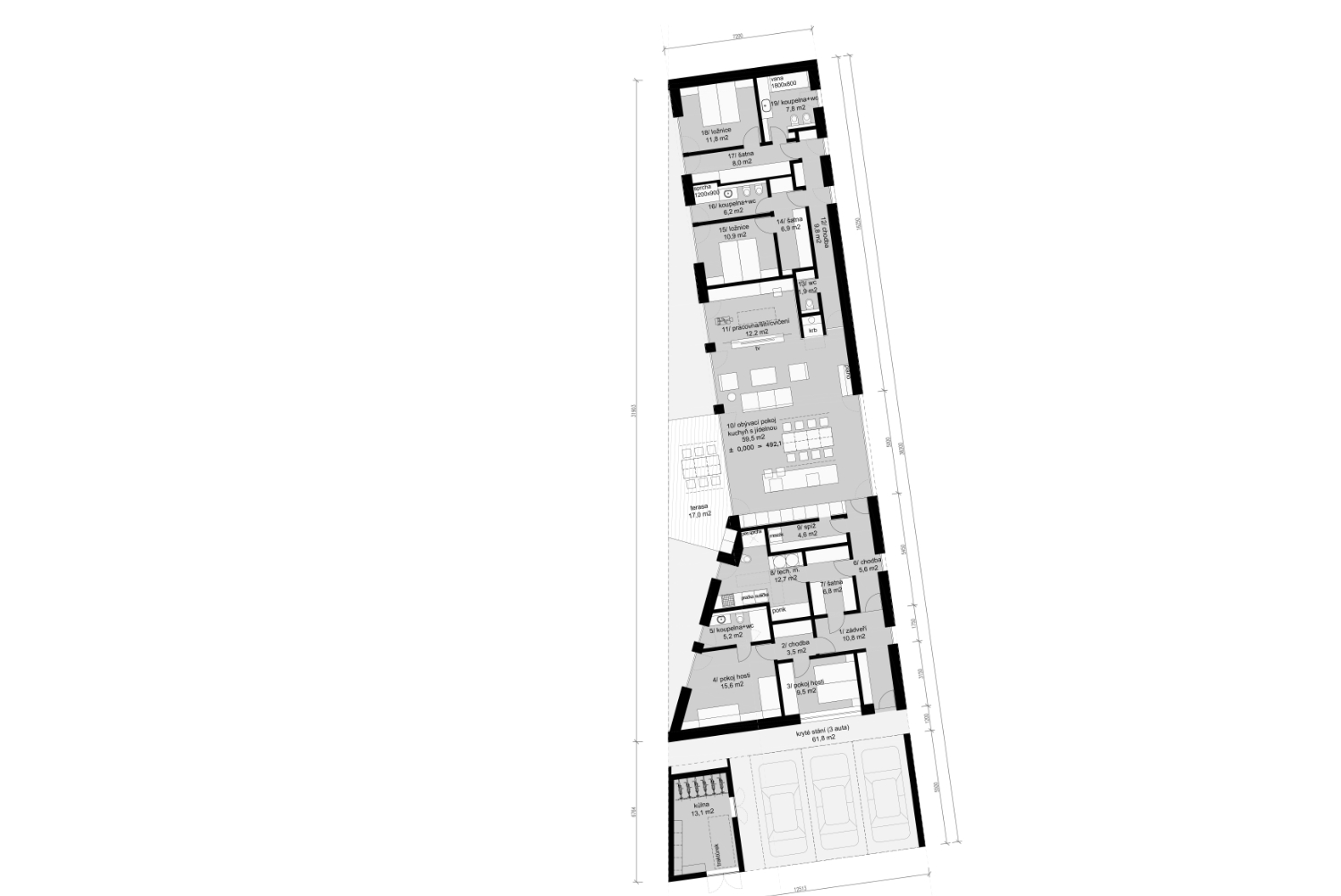
Dispozičně je lichoběžníkový dům rozdělen na samostatný apartmán pro hosty, dvě ložnice s vlastními koupelnami, obývací pokoj propojený s kuchyní, jógovou místnost, kryté stání a technickou místnost se sprchou pro psa. Celým domem je vedeno skryté podlahové vytápění. Čisté barvy interiéru jsou doplněny o nábytek z dubového dřeva navržený na míru. Součástí návrhu je velké množství úložných prostor, které byly klíčovým požadavkem majitelů domu, a také dostatek prostoru pro umění – především obrazy, jež majitelé rádi sbírají.
Rodinný dům na Vysočině
Místo: Vysočina, Česká republika
Ateliér: Luni architekti
Autor: Nina Ratočka Pevná
Stavební inženýr: Vladimír Vonka
Truhlář: Trist
Dodavatel dveří: Dorsis
Dodavatel oken: Agát
Projekt: 2018–2021
Realizace: 2021–2023
Zastavěná plocha: 380 m2
Podlahová plocha: 209 m2 (dům); 50 m2 (terasa); 62 m2 (kryté parkovací stání); 13 m2 (kůlna)
Foto: Petr Polák Studio
